Groene Hilledijk 384A

Groene Hilledijk 384A

ROTTERDAM

vraagprijs

verkocht

Ook uw woning of bedrijfspand succesvol verkopen? Neem dan contactmet ons op

Gratis waardebepaling

Omschrijving

Deze royale dubbele benedenwoning met zonnige tuin ligt aan de rand van Vreewijk tegenover het park de ‘Valkeniersweide’. De woning, gebouwd in de jaren '30 onder de kenmerkende architectuur, beschikt over een grote woonkamer met geweldig vrij uitzicht, ruime keuken, 2 grote slaapkamers (3 mogelijk), royale badkamer en handige wasruimte. Buiten geniet je van het zonnetje op het balkon of in de zonnige achtertuin op het zuidoosten met grote berging.

Gelegen op een ideale locatie vlakbij Zuidplein en het centrum van Rotterdam. De tram stopt verderop in de straat, met de auto ben je binnen een paar minuten op de snelweg. Ook wat rust en groen? Hiervan vindt u meer dan genoeg in het park aan de overkant of in het Zuiderpark verderop!

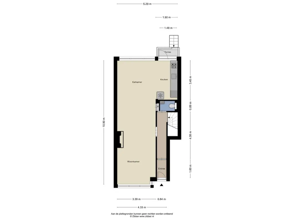
Indeling:

Begane grond: Woonkamer met deur naar balkon en tuin, open keuken met nette inrichting, hal/entree met toilet en gaderobe.

Onderverdieping: masterbedroom met schuifpui naar de tuin, ruime extra slaapkamer, berg-/hobbykamer, overloop met kastruimte, moderne, luxe badkamer met inloopdouche, toilet en wastafel.

Algemeen:

- energielabel C
- 109 m2 woonoppervlakte
- 2 bergingen, totaal 10 m2
- CV-gas
Lees meer

Kenmerken

Overdracht

Status
verkocht
Aanvaarding
in overleg

VvE checklist

Inschrijving KVK
Nee
Jaarlijkse vergadering
Nee
Periodieke bijdrage
Nee
Reservefonds aanwezig
Nee
Onderhoudsplan
Nee
Opstalverzekering
Nee

Bouw

Soort woning
appartement
Soort appartement
benedenwoning
Aantal woonlagen
2
Bouwjaar
1936
Open portiek
ja
Onderhoud binnen
redelijk_tot_goed
Onderhoud buiten
redelijk_tot_goed

Energie

Energielabel
C
Verwarming
cv ketel, open haard
Warm water
cv ketel
C.V.-ketel
(gas gestookt combiketel)

Oppervlakten en inhoud

Woonoppervlakte
109 m²
Bergruimte oppervlakte
10 m²
Buitenruimte oppervlakte
2 m²

Indeling

Aantal kamers
3

Buitenruimte

Tuin
achtertuin met een oppervlakte van 86 m² en is gelegen op het zuidoosten

Bergruimte

Garage
geen garage
Parkeergelegenheid
openbaar parkeren
Schuur/berging
vrijstaand hout

Foto's

Plattegronden

Locatie

Vraag een bezichtiging aan of neem contact met ons op.